

Summary
QBY Engineering Plastic diaphragm pump not only can exhaust the flow liquid,but also can convey some uneasy flowed medium,with the merits of self-pumping pump,diving pump,shield pump,slurry pump and impurity pump etc:
Working principle
There installs each diaphragm in both aligned working cavities(A) &(B),which can be connected tonether with a central coupling lever.The compression air enters the air distribution valve from the air entrance of the pump,draw the compression air into one cavity through the air distibution mechanism,push out the diaphragm movement in the cavity.The gas in another cavity will be drained.Once reaching the stroke terminal,the air distribution mechanism will automatically draw the compression air into another working cavity,push out the diaphragm to move towards the opposite direction,so as to let the both diaphragms continuously reciprocate motion in synchronism. The compression air enters the air distribution valve from(E)shown as the diagram,let the diaphragm piece move towards the right direction.And the suction force in(A)chamber lets the medium flow into from(C)entrance,push out the ball valve(2)to enter(A)chamber,the ball valve(4)will be locked due to the suction force;The medium in(B)chamber will be pressed,push out the ball valve(3)to flow out from the exit(D).Meanwhile,let the ball valve(1)close,prevent backflow.Such movement in circles will let the medium uninterruptedly suck from(C)entrance and drain feom(D)exit.
Main usage
System connection schematic diagram









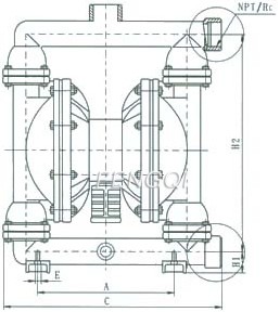
Drawing of setting data



Table of setting data
| Model | A | B | C | D | E | H1 | H2 | H3 | H | Screw | Flange | |||||
| NPT/RC | D1 | D2 | D3 | D | n | g | ||||||||||
| QBY-10 | 130 | 50 | 220 | 145 | 10 | 39 | 195 | 10 | 270 | 1/2 | - | - | - | - | - | - |
| QBY-15 | 130 | 50 | 220 | 145 | 10 | 39 | 195 | 10 | 270 | 1/2 | - | - | - | - | - | - |
| QBY-25 | 245 | 160 | 360 | 250 | 12 | 63 | 360 | 36 | 470 | 2 | - | - | - | - | - | - |
| QBY-40 | 245 | 160 | 360 | 250 | 12 | 63 | 360 | 35 | 470 | 11/2 11/4 | - | - | - | - | - | - |
| QBY-50 | 335 | 220 | 540 | 345 | 16 | 88 | - | 25 | 720 | - | 90 | 50 | 110 | 130-130 | 4 | 14 |
| QBY-65 | 335 | 220 | 540 | 345 | 16 | 88 | - | 25 | 720 | - | 110 | 65 | 130 | 130-130 | 4 | 14 |
| QBY-80 | 425 | 250 | 570 | 450 | 18 | 110 | - | 32 | 900 | - | 125 | 80 | 150 | 160-160 | 4 | 18 |
| QBY-100 | 425 | 250 | 570 | 450 | 18 | 110 | - | 32 | 900 | - | 145 | 100 | 170 | 160-160 | 4 | 18 |
Preformance parameter
| Model | Discharge (m3/h) |
Head (m) |
Exit pressure (kgf/cm2) |
Sucked Lift (m) |
Max grain Dia (mm) |
Max pressure (kgf/cm2) |
Max air consumption (m3/min) |
Materials | ||||
| ZL104 | 1Cr18 Ni9Ti |
HT200 | Enhanced Polypr opyene |
F4 F46 (EFP)PO |
||||||||
| QBY-10 | 0~0.8 | 0~50 | 6 | 5 | 1 | 7 | 0.3 | * | * | * | * | / |
| QBY-15 | 0~1 | 0~50 | 6 | 5 | 1 | 7 | 0.3 | * | * | * | * | / |
| QBY-25 | 0~2.4 | 0~50 | 6 | 7 | 2.5 | 7 | 0.6 | * | * | * | * | |
| QBY-40 | 0~8 | 0~50 | 6 | 7 | 4.5 | 7 | 0.6 | * | * | * | * | * |
| QBY-50 | 0~12 | 0~50 | 6 | 7 | 8 | 7 | 0.9 | * | * | * | / | * |
| QBY-65 | 0~16 | 0~50 | 6 | 7 | 8 | 7 | 0.9 | * | * | * | / | * |
| QBY-80 | 0~24 | 0~50 | 6 | 7 | 10 | 7 | 1.5 | * | * | * | / | / |
| QBY-100 | 0~30 | 0~50 | 6 | 7 | 10 | 7 | 1.5 | * | * | * | / | / |