Valves

Features
ZZYP, ZZYM type self-reliance pressure differential regulator is an energy saving product without external energy, using pipe pressure change to compare with signal, make the media force and the actuator output force balanced, in order to achieve certain pressure, pressure differential value, self-reliance pressure differential regulator is mainly used in various industrial furnace gas combustion system, control, two kinds of fuel mixture ratio flow to achieve ideal burning conditions. Self-reliance type pressure differential regulator can be used for steam turbine generator sealing oil system, to ensure the normal operation safety and generating electricity to improve efficiency. Self-reliance type pressure differential regulator can be used in coal gas, natural gas, liquefied petroleum gas, liquefied petroleum gas, nitrogen and other industrial gas pressure adjustment. Shanghai Yihuan flow control equipment Co.,ltd produced regulator can also be used in oil, chemical industry, metallurgy, pharmacy, etc.industrial departments process pressure differential, balanced system automatic regulation.
Technical parameters and performance indicators
body:HT200、ZG230-450、ZG1Cr18Ni9Ti 、ZGCr18Ni12MoTi
core:Cr18Ni12Mo2Ti、1Cr18Ni9Ti
seat:Cr18Ni12Mo2Ti、1Cr18Ni9Ti
spring:60Si12Mn、1Cr18Ni9Ti、50CrVA
bellows:1Cr18Ni9Ti
diaphragm: NBR, oil-resistant rubber, fluororubber
diaphragm cover:A3、1Cr18Ni9Ti
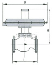
DN: 20 25 32 40 50 65 80 100
flange length(L): 185 200 205 222 254 276 298 352
actuator width:(K): 395
total height(H): 376 465 365 445 445 490 490 510
joint thread: M16×1.5
flange standard
GB:1.6、2.5、4.0Mpa
ANSI:150、300Lb
JIS:10K、20K
Detail technical parameters
| DN(mm) | 20 | 25 | 32 | 40 | 50 | 65 | 80 | 100 | |
| rated flow coefficient Kv |
signle seat | 8 | 11 | 20 | 32 | 50 | 80 | 100 | 160 |
| double seat | 53 | 83 | |||||||
| rated stroke L(mm) | 6 | 8 | 10 | 15 | 20 | ||||
| PN (MPa) | 0.10、? 1.0 | ||||||||
| pressure differential adjustable scope (KPa) |
0.5~5.5、 5~10、 9~14、 13~19、 18~24、22~28、26~33、 31~38、 36~44、 42~51、 49~58、56~66、 64~78、 76~90、 88~100 |
||||||||
| media temperature(%) | ≤80 | ||||||||
| allowed precision (%) | ≤10 | ||||||||
| Allowed leakage(1/h) | signle seat | 10-4×rated volume(Ⅳ) | |||||||
| double seat | 5×10-3×rated volume(Ⅱ) | ||||||||
External dimensions (unit:mm) Note: the flange length according to PN16

| (DN) | 20 | 25 | 32 | 40 | 50 | 65 | 80 | 100 | 125 | 150 | 200 | 250 | 300 |
| flange length (L) | 185 | 200 | 205 | 222 | 254 | 276 | 298 | 352 | 410 | 451 | 600 | 670 | 735 |
| total height (H) | 615 | 645 | 650 | 710 | 730 | 745 | 760 | 800 | 890 | 960 | 1050 | ||
| H1 | 52.5 | 57.5 | 67.5 | 72.5 | 80 | 90 | 97.5 | 107.5 | 122.5 | 140 | 167.5 | 225 | 230 |
| D | 100 | ||||||||||||
| H | 280 | ||||||||||||
| flange standard | GB:PN1.6、2.5、4.0Mpa?? ANSI:150、300Lb??? JIS:10K、20K | ||||||||||||
Installation diagram




